Te huur Appartement Schiekade in Rotterdam
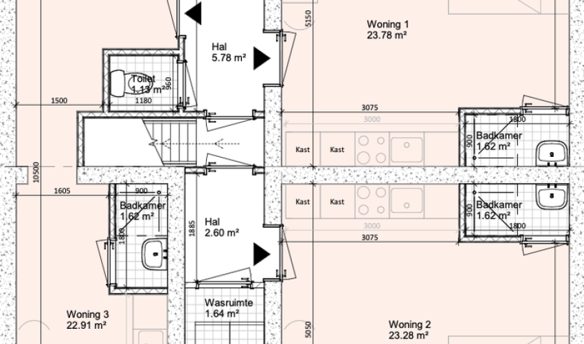
Aan de Schiekade in Rotterdam bieden wij meerdere gemeubileerde studio-units (16-25m2) aan. Deze compacte maar comfortabele woonruimtes zijn ideaal voor werkende professionals of studenten die graag zelfstandig willen wonen met gedeelde faciliteiten. De studio’s beschikken over een eigen keuken, voorzien van een inductiekookplaat, oven, vaatwasser en koelkast. Daarnaast heeft iedere unit een eigen badkamer met douche en wasmeubel. Het toilet wordt gedeeld per verdieping. Alle woningen zijn vol...... Als je verder klikt kom je bij een nieuwe pagina met uitgebreide informatie over de huurwoning en met de directe contactgegevens van de beheerder









