Te huur Appartement Treurenburgstraat 273 in Eindhoven
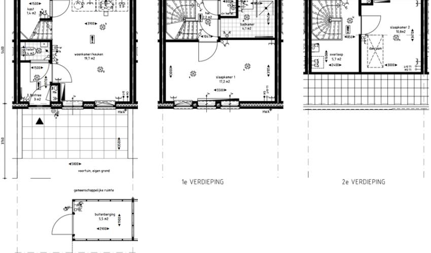
TE HUUR: Treurenburgstraat 273 Eindhoven Huurprijs: Â1.500,- excl. Â25,- servicekosten en Â58,10 kosten parkeerplaats Beschikbaar per 01-12-2025 In PicusKade woon je tegen het centrum van Eindhoven aan, maar toch omgeven door rust en ruimte. Je hebt dus écht alles in de buurt: winkels, restaurants, de bioscoop, het station. PicusKade wordt een nieuwe wijk in Eindhoven, gebouwd tussen het NRE-terrein en het DAF-museum. Midden in Eindhoven...... Als je verder klikt kom je bij een nieuwe pagina met uitgebreide informatie over de huurwoning en met de directe contactgegevens van de beheerder



