Te huur Appartement Govert Flinckstraat in Amsterdam
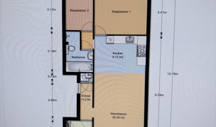
Moderne en ruime appartement van 73 m² gelegen aan de Govert Flinckstraat. Het appartement beschikt over twee slaapkamers, één badkamer, een aparte toilet, een keuken en een woonkamer. Er is ook een charmante tuin verbonden met de slaapkamers. De Govert Flinckstraat is een charmante straat gelegen in het hart van de levendige De Pijp buurt van Amsterdam. Dit gebied staat bekend om zijn levendige sfeer, rijke culturele erfgoed en een heerlijke mix van ouderwetse charme en moderne gemakken. We zij...... Als je verder klikt kom je bij een nieuwe pagina met uitgebreide informatie over de huurwoning en met de directe contactgegevens van de beheerder









