Te Huur 2 Kamer Appartement Lutmastraat In Amsterdam
Object: Direct bij de eigenaar
Huurtermijn: Onbepaalde termijn
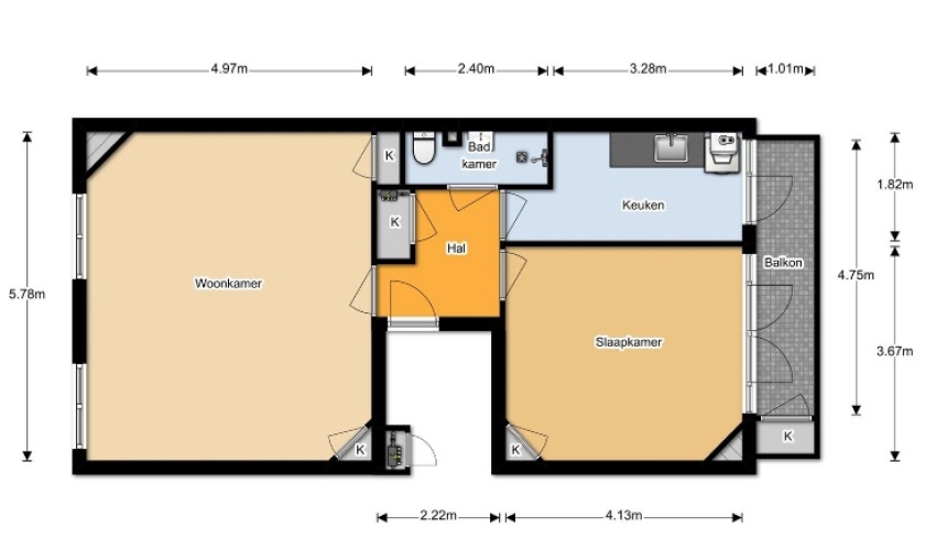
Oplevering: Zie foto
Inkomen eis: 3,0 x Bruto huur
Garantiestelling mogelijk: Ja
Borg: 1 Maand
Bemiddeling kosten: Nee
Woningdelers toegestaan: Ja
Huisdieren toegestaan: Afhankelijk van de Eigenaar
Huurtoeslag grens: Nee
Geschikt voor studenten: Afhankelijk van de Eigenaar







